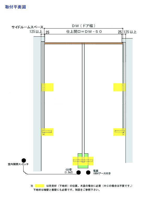
スタンダードレールタイプ取付図