|
|
北欧が生んだ高性能木製断熱玄関ドア
〔組立完成品〕
ETGシリーズは限られた森林資源を有効活用できる植林木である「欧州赤松(パイン)」で製作される高性能木製断熱玄関ドア。パインドアだからこそお好みの色で塗装ができます。 |
 |
■基本仕様
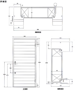
開口寸法
1000x2080mm(枠外寸法 988x2068mm)
ドア厚
64mm
3層クロスハッチパイン表面材+0.5mm厚アルミサンドイッチ構造
枠見込み
104mmパイン集成材枠
敷居
アルミ+木製バリアフリー敷居
ガラス
3mm+12mm+4mm+12mm+3mm 計34mm トリプルガラス
|
取手、ロックセット
ミワロック社製ETGシリーズオリジナルロックセット
標準色: ステンレスヘアライン色
オプション:ゴールドヘアライン色
塗装
未塗装
※現場にて必ず塗装が必要です。
出荷形態
完成品吊り込み済み、取手・ロックセット付 |
| ■安全な防犯性能のダブルロックを標準装備 |
■使い手を考えた金物類 |
セキュリティーの高いディンプルキー+主錠と補助錠のダブルロック+鎌錠を採用した高い防犯性。更に工事用キーも付属し、お施主様はお引渡し時も安心です。

主錠+標準ハンドル(ステンレスヘアライン色)
外から施錠・開錠が見えないロックガード標準整備。

補助錠(鎌錠)
|
蝶番も防犯性の高いセキュリティーヒンジを採用し
高さ調整機能も付いております。

セキュリティーヒンジ
(高さ調整機能付き

バリアフリー敷居標準
|
| |
|
|
| ■室内側パネル |
|

室内側はシンプルなフラッシュパネルです。 |
| |
|
|
| ■ガラス |
|
防犯性能、断熱性能の高い3層ガラスを標準装備
ガラス厚
3mm+空気層12mm+ガラス厚4mm+空気層12mm+ガラス厚3mm 計34mm |

F1-G-WDP5 コッツウォルドガラス |

F301-G-WDP5 エトサットガラス |
| |
|
| |
|
|
| ■オプション |
|
ゴールドヘアライン色 ハンドルセット
※ヒンジもゴールド色になります。
¥49,000(税別) |
ドアクローザー
S-22P-WDP5
¥14,000(税別) |
ドアガード(シルバー色/ゴールド色)
RH-102N-WDP5
¥3,700(税別) |
 |
 |
 |
ドアノッカー 飾り鋲 飾り丁番 |

ドアノッカー
RMXAG-WDP5
¥38,100(税別)
鋲
RMBAP-WDP5
¥3,000(税別)
飾り丁番
RI2AP-WDP5
¥17,000(税別)
オプション設置イメージ
|
|
| |
|
| |
|
|
素材、性能に対する最高のデータ。
 |
ホルデアルデヒド発散建築材料に対する国土交通省の認定
|
| |
|
| <性能データ> |
SP基準(スウェーデン評価機関)をクリアした高性能な玄関ドアです。
※SP基準値をJIS基準値に置き換えたデータです。
気密性 |
遮音性 |
断熱性 |
A4 |
T2 |
H5 |
1.0w/uK
(ガラス付) |
0.7W/uK
(ガラスなし) |
|
| |
|
製品図面
防犯性能の表示 |
|
シリンダー錠(主錠)
平成15年法律 第65号第7条
指定建物錠の防犯性能の表示
事項 |
性能 |
耐ピッキング性能 |
|
5分未満 |
|
5分以上
10分未満 |
○ |
10分以上 |
耐かぎ穴壊し性能 |
|
5分未満 |
○ |
5分以上10分
未満 |
|
10分以上 |
耐サムターン回し性能 |
|
なし
(5分未満) |
○ |
あり
(5分以上) |
|
|
耐カム送り解除性能 |
|
なし
(5分未満) |
○ |
あり
(5分以上) |
|
|
耐こじ破り性能 |
|
なし
(5分未満) |
○ |
あり
(5分以上) |
|
|
出荷時かぎ本数 |
6本 |
(工事キー2本付属) |
| 防犯性能の解説 |
耐ピッキング性能
ピッキング(シリンダーの鍵穴に特殊工具を差込んで錠を操作する方法)による解錠を防ぐ性能
耐鍵穴壊し性能
工具等によってシリンダー自体を破壊し、錠内部の機構を操作する方法による開錠を防ぐ性能
耐サムターン回性能
ドアに開けた穴からサムターン回しを差込み、サムターン(つまみ)を回転させる方法による解錠を防ぐ性能
耐カム送り解錠性能
錠の構造上のすき間から針金等の工具を内部に差込み、錠内部の機構を操作する方法による解錠を防ぐ性能
耐こじ破り性能
ドアとドア枠のすき間からバール等の工具を差込み、デッドボルト(かんぬき)を折り曲げる方法による開錠を防ぐ性能
出荷時かぎ本数
ロック製造メーカーがシリンダー錠又はシリンダーとセットで出荷する「かぎ」の本数 |
●防犯性能表示とは
特殊開錠用具の所持の禁止等に関する法律(平成16年法律第65号)第7条に基づき、指定建物錠に義務付けられている防犯性能の表示をいいます。
●建物錠とは
住宅の玄関その他建物の出入り口につける目的で製造される錠を言います。
●指定建物錠とは
建物錠またはその部品のうち、防犯性能の向上を図ることが特に必要なものをいい、シリンダー錠、シリンダー、サムターンの3種が指定されています。 |
|
| |
|
お手入れ
ETGシリーズ玄関ドアは自然の木を使用していますので、必ずお手入れをお願いしています。
高温・多湿の環境に設置された場合、お手入れの回数を増やしていただくと長年使用が可能となります。
メンテをおこたるとカビ、ヨゴレ、ホコリ、塗装落ち等の発生原因になります。
ドア本体・枠
●未塗装品で納品されます。
雨風・日光に対するバリアを作るため、必ず塗装してお使い下さい。
メンテナンス方法は塗料によって異なりますので、塗装された業者様にお問い合わせ下さい。
※ラッカー仕上げされている場合、塗膜を形成する塗料もあり、木の持つ調湿機能が損なわれうことで、塗面のワレ・ハガレ・メクレが起き、塗り替え時に全剥離が必要となります。
※木製のため、湿気を嫌います。
通常最初に傷んでくる箇所は雨や雪がかかりやすいドア下部です。
雨や雪で濡れている状態が続かないように水分を拭き取ってください。
このとき、目だたないドアボトム部の底面の水分もしっかり拭きとって下さい。
水分を吸収しやすい箇所ですので再塗装の際も念入りに塗装してください。

●納品時のご注意
・納入条件は原則、現地車上渡しとなっております。
運転手は荷下ろしのお手伝いができませんのでお客様で最低2名による車上荷卸の準備をお願いします。)
・納入後の商品の異常や破損を発見された場合は、取り付けはせず、納品より1週間以内にご連絡下さい。
取付後の商品や1週間を経過した場合、現場でおきた異常や破損等のクレームは受けかねる、または対処が有償となりますのでご注意下さい。いかなる場合でも工事代は負担いたしません。
・梱包材等の廃材処分は価格に含まれていませんので、現場での処分をお願いします。
|